越前古窯博物館

越前古窯博物館

見て、使える 博物館へ!
〜越前焼と茶の文化を今に〜

焼き締めや自然釉が特徴のひとつで、素朴なぬくもりのある越前焼。日本六古窯の一つとして、日本遺産にも認定されているこのやきものが現代に伝わるのは、一人の研究者の存在があったからです。

その研究者とは、越前古窯研究の第一人者である水野九右衛門先生。水野先生が研究の過程で収集した資料を公開し、越前焼の研究拠点として平成29年10月28日、越前陶芸村に越前古窯博物館が開館しました。

古越前の展示・研究だけではなく、本格的な茶室やコミュニティスペースとなる古民家も備えており、様々な場面で活用できる施設です。

Exhibition 企画展情報

Event イベント情報

越前焼と水野先生

越前焼は平安時代末期に始まり、800年以上焼き続けられていますが、このやきものに「越前」の言葉が初めて使われたのは、東洋陶磁研究の第一人者であった故小山冨士夫氏の論文「越前の古窯」(1947年)です。

それまでは、「織田焼」「ふくい焼」「小曽原焼」と呼ばれ、地元やごく一部の研究者だけしか知らなかったやきものでしたが、小山氏が1942年に越前窯址を調査し、「わが国で最も重視すべき窯の一つ」であることを確認したことで、瀬戸・常滑・信楽・丹波・備前の日本五大古窯に匹敵する六番目の古窯として全国的に知られるようになりました。

小山氏と名古屋大学の楢崎教授の指導を受けた地元の古窯址研究者、水野九右衛門先生が越前古窯の解明を生涯の研究テーマとして、その調査研究に全力を注ぎ、今日の越前焼研究の基礎をつくりました。

水野先生は、40年以上の研究を通じて、中世の古越前をはじめとする様々な資料を収集し、越前焼の成り立ちを明らかにしました。また、コレクションを公開するために私財を投じて、1968年に越前焼研究の拠点となる「水野古陶磁館」を建設しました。

その後、水野先生は中世越前窯の復元を行い、焼成実験を行うなどの研究を進めましたが、復元古窯の3回目の実験前に急逝されました。先生の死後、研究は教え子に引き継がれ、越前焼の歴史が明らかなりました。また、先生が収集された資料は「水野九右衛門コレクション」として、国の登録有形文化財登録を受けています。

越前古窯博物館は水野先生の遺志を引き継ぎ、越前焼の研究を進めるために、「水野古陶磁館」を陶芸村に移設し、水野コレクションを始めとする古越前の研究を進める拠点です。

水野九右衛門先生年譜

西暦 年齢 出来事
1921年 0歳 5月7日 鯖江市に生まれる
1943年 22歳 東洋大学文学部文学科(人形浄瑠璃 熊野を研究)卒業、学徒出陣する
1945年 24歳 丹生郡宮崎村熊谷の水野知子と結婚。自宅周辺の水田・山麓にある越前焼陶片を集めて、越前焼研究を始める
1947年 26歳 丹生高等女学校(現 丹生高等学校)教諭となる
1948年 27歳 小山冨士夫が越前古窯調査のため水野家に一週間滞在、北野七左衛門を交えて三人で越前焼について語る
この後小山の指導を受けながら越前焼の研究を本格的に始める
1949年 28歳 丹生高等学校に郷土研究部を作り、その紀要に「越前古窯の研究」を発表する
1953年 32歳 3月 福井銀行武生支店に小山冨士夫氏を招き、越前古窯の記念講演を行う
12月 丹生郡の文化財調査・保存・研究を目的とした「丹生郡文化財研究会」を結成、理事に就任する
1954年 33歳 武生市公会堂で「陶磁展」が開催され(武生市公民館・日本陶磁協会武生支部 共催)、古越前を50点展示する(11月13日から15日)
1955年 34歳 この頃から夏休みを利用して毎年東京国立博物館・小山冨士夫宅などに長期滞在、古陶磁の研究を行う
10月 武生市京町の浄秀寺で「越前古窯展」を開催する
1957年 36歳 武生市広瀬古窯群の発掘調査を行う
1959年 38歳 丹生郡清水町小羽遺跡の発掘調査を行う
1960年 39歳 6月 名古屋大学講師楢崎彰一を越前古窯に案内、以後30年に及ぶ交流が始まる
8月 武生市野々宮廃寺の発掘調査を行う
1962年 41歳 福井県立岡島美術館で「越前古窯展」を開催する
1964年 43歳 丹生郡朝日町仲条古墳の発掘を行う
1965年 44歳 宮崎村小曽原の神明ヶ谷須恵器窯と越前町織田平等の上大師谷窯の発掘調査を名古屋大学講師 楢崎彰一と共同で行う
1968年 47歳 4月28日 水野古陶磁館開館 20年間の研究成果を公開する
1969年 48歳 越前における石造美術・民俗・窯業などを研究する「越前文化の会」を結成する
1971年 50歳 福井県陶芸館開館 審査会委員となる
1972年 51歳 丹生郡宮崎村熊谷の奥堂の谷窯の発掘調査を行う
1975年 54歳 小説『炎の舞い』(津村節子著)に水谷先生の名前で登場する
宮崎村小曽原の上長佐窯の発掘調査を名古屋大学助教授 楢崎彰一・福井県陶芸館と共同で行う
越前焼研究の集大成として、光美術工芸社より『時代別越前名品図録』を出版する
1976年 55歳 やきもの文化の向上により福井新聞社より文化賞を受賞する
1977年 56歳 丹生郡宮崎村小曽原の上長佐窯の第2次発掘調査を名古屋大学助教授 楢崎彰一・福井県陶芸館と共同で行う
1979年 58歳 丹生郡宮崎村熊谷の水上窯の発掘調査を行う
1981年 60歳 福井県教育委員会より福井県文化賞を受賞する
1982年 61歳 福井県立丹生高等学校を定年退職する。実験考古学として古窯の復元と焼成方法の研究を始める
福井考古学会発足、副会長に就任する
1983年 62歳 福井県窯業誌の責任編集を山口信嗣と共に行い、刊行する。山本有三記念郷土文化賞を受賞する
1985年 64歳 小山冨士夫記念賞を受賞する
1986年 65歳 上長佐窯を参考に「九右衛門窯」を自宅近くに築窯する
丹生郡織田町平等の岳の谷窯の発掘調査を国立歴史民俗博物館教授 吉岡暢康等と行う
1987年 66歳 念願の復元窯「九右衛門窯」で焼成実験を始める
1988年 67歳 「九右衛門窯」の2回目の実験を行う。福井考古学会会長に就任する
1989年 68歳 3回目の実験を準備中だった9月25日に没する

岡倉天心と茶文化

明治・大正期の思想家、美術指導者である「岡倉天心」は、福井藩士を父に持つとともに、幼少期から多くの福井人に囲まれて育ったことから、 自ら「越前生まれ」と記すほど福井に対する想いは深く、郷土の生んだ偉人として長く敬愛されています。

天心の功績の一つに、「茶の文化」を通して日本文化をわかりやすく紹介し、現在も世界中で読み継がれている『茶の本』の執筆があります。

日本の芸術、文化、生活や日本人の美意識が茶の湯にあるという天心の志を育んだのは、越前焼を始めとし、和紙や漆器、打刃物、指物などの 匠の技が継承されてきた歴史や篤い信仰心、自然と調和した生活様式など日本人の生活に不可欠な要素がそろった福井の風土にあるといえます。

越前古窯博物館は、福井の伝統工芸をふんだんに活用して建築されただけでなく、本格的な茶室も備えています。今後、天心を顕彰する茶会を 始め、日本の文化を継承する様々な催しを開催することで、伝統工芸と「茶文化」の融合を図り、県内外にその魅力を発信していきます。

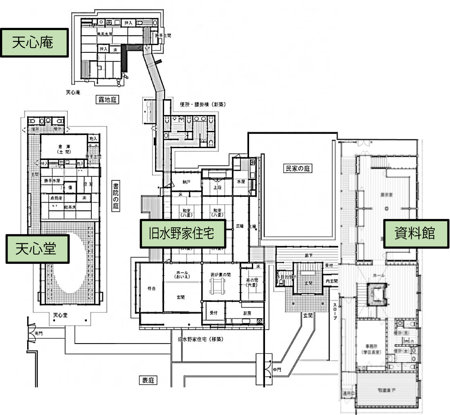
施設案内

資料館

越前焼研究の第一人者であり、越前焼の名付け親の一人である水野九右衛門先生が収集した、平安時代から現代に至るまでの貴重な資料(国登録有形文化財「福井県陶磁器資料(水野九右衛門コレクション)」)を展示します。

旧水野九右衛門家住宅

水野九右衛門先生の住宅(天保6年 1835年建築)を移築。多目的のコミュニティスペースとして活用できます。

利用例:
集会場、大学ゼミ活動、伝統芸能(日本舞踊、雅楽等)の稽古場、伝統工芸品や食のマルシェ会場 等

茶室

約40名が立礼形式の茶会を実施できる 天心堂

四畳半の本格的な茶室 天心庵

利用例:
茶会会場、学校茶道部の稽古場、小中学生の茶道教室、華道等のカルチャー教室 等

利用料金

(1)資料館

区分 利用料金 備考
常設展 個人 300円 団体は30人以上から
高校生までの学生の方、70歳以上の方、障害者手帳をお持ちの方とその付添の方(1名)は常設展の観覧料無料
団体 240円×人数
企画展 個人 その都度決定
団体 上記の8割×人数

(2)旧水野九右衛門家住宅

区分 利用料金 備考
和室(全4部屋) 400円/部屋 1時間あたりの料金

(3)茶室

区分 利用料金 備考
天心庵 900円 1時間あたりの料金
天心堂 2,500円

(4)呈茶

一服(生菓子付き)800円
一服(干菓子付き)500円

ご利用申し込み

旧水野九右衛門家住宅・茶室のご利用は「越前古窯博物館利用案内」をご覧の上、「使用許可申請書」をダウンロードしご記入の上、FAX、メール、郵送でご提出下さい。

越前古窯博物館利用案内

施設概要

開館時間
午前9時から午後5時まで(入館は午後4時30分まで)
休館日
月曜日(休日を除く)
休日の翌日(土・日・休日を除く)
年末年始(毎年12月28日から1月4日)
住所
〒916-0273
福井県丹生郡越前町小曽原107-1-169
電話番号
0778-32-2174(代表/福井県陶芸館 総合受付)
FAX
0778-32-2279